
Terasstruktuuri vihmaveetorud on hoone katuse äravoolusüsteemi ülioluline komponent. Nende peamine funktsioon on koguda vihmavett katuselt, suunata see vertikaalsetesse torudesse ja vabastada see siis välissehvelisüsteemi, hoides ära selle otsese seinte erodeerumise või vundamentide leotamise. Liweiyuani tootekujundust ja paigaldamist iseloomustavad kõrge tugevus ja kerge kaal, tagades sujuva drenaaži ja erakordse vastupidavuse.
Terasstruktuuri vihmaveetorud on hoone katuse äravoolusüsteemi ülioluline komponent. Nende peamine funktsioon on koguda vihmavett katuselt, suunata see vertikaalsetesse torudesse ja vabastada see siis välissehvelisüsteemi, hoides ära selle otsese seinte erodeerumise või vundamentide leotamise. Liweiyuani tootekujundust ja paigaldamist iseloomustavad kõrge tugevus ja kerge kaal, tagades sujuva drenaaži ja erakordse vastupidavuse.
Liweiyuani terasest struktuuri vihmaveerennid on valmistatud korrosioonikindlatest ja löögikindlatest materjalidest.
Meie toode on kuumkastnud tsingitud, pakkudes suurepärast korrosioonikindlust, odavaid kulusid ja pikka kasutusaega. Saadaval paksusega 1,5–2,5 mm, sobib see enamiku rakenduste jaoks.
Roostevabast terasest valmistatud toode pakub korrosioonikindlust ja sobib eriti ranniku- või niiske keskkonna jaoks. Saadaval paksusega 1,0–2,0 mm, see pakub kõrgemat hinda, kuid pikka kasutusaega.
Meie värvitud terasest tooted põhinevad galvaniseeritud terasel, mis on kaetud ilmastikukindla kattega, näiteks polüester või fluorosüsinik, nii korrosioonikindluse kui ka dekoratiivsete efektide tagamiseks. Saadaval paksusega 1,2–2,0 mm, sobivad hoonete jaoks, mis nõuavad kõrget esteetilist atraktiivsust.
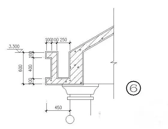
Terasstruktuuri vihmaveerennide konstruktsioonivorm tuleb kohandada katuse kalde ja räästa kujundusega. Tavaliste tüüpide hulka kuulub U-kujuline ja V-kujuline. Installimisprotsess on järgmine:
Meie terasest konstruktsiooni vihmaveerennid kasutavad terasest vihmaveerennide sulgusid, et kinnitada need terasest konstruktsiooni räästa taladele või purline. Sulgude vahe on 600–1000 mm, et tagada vihmaveerennil isegi pingejaotus.
Valmis vihmaveetorud on eelsuurused ja ühendatud kohapeal ühendustega või keevitamise abil. Vihmaveerenni ja katusekatte vahelisel ristmikul on vajalik hermeetiku.
Saame installida vilkumise katusekatte kohale. Vihmaveerenni alumine ots tuleks asetada katusekatte alla ja pitseerida hermeetikuga. Vihmaveerennide allosas tuleks varuda äravooluaugud, peamiselt ühenduse loomiseks vihmavee püstikutega.
Meie terasstruktuuri vihmaveerennide tootmisprotsess hõlmab lõikamist vastavalt joonistusmõõtmetele, paindumisele, maalimisele, valmistoodete ülevaatusele, pakendamisele ja saatmisele. Liweiyuani terasest struktuuri vihmaveerennid on konstrueeritud ja paigaldatud, et tagada korrosioonikindlus, sujuv äravoolu ja vastupidavus, tagades tõhusa äravoolu.