
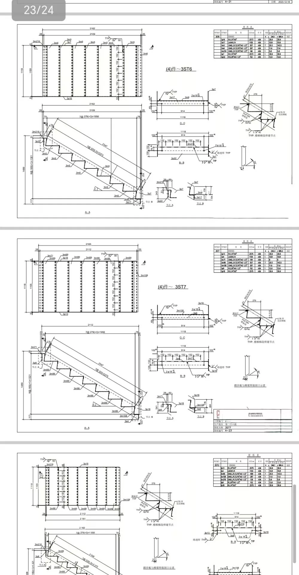
Liweiyuani terasest konstruktsiooni trepid on valmistatud peamiselt kanali terasest ja terasest plaatidest, kasutades lõikamis- ja keevitustehnikaid. Meie toodetel on minimaalsed tugipunktid ja suure koormuse kandevõime. Pakume mitmesuguseid trepistiile ja saame neid ka teie vajadustele kohandada. Olge julgelt!
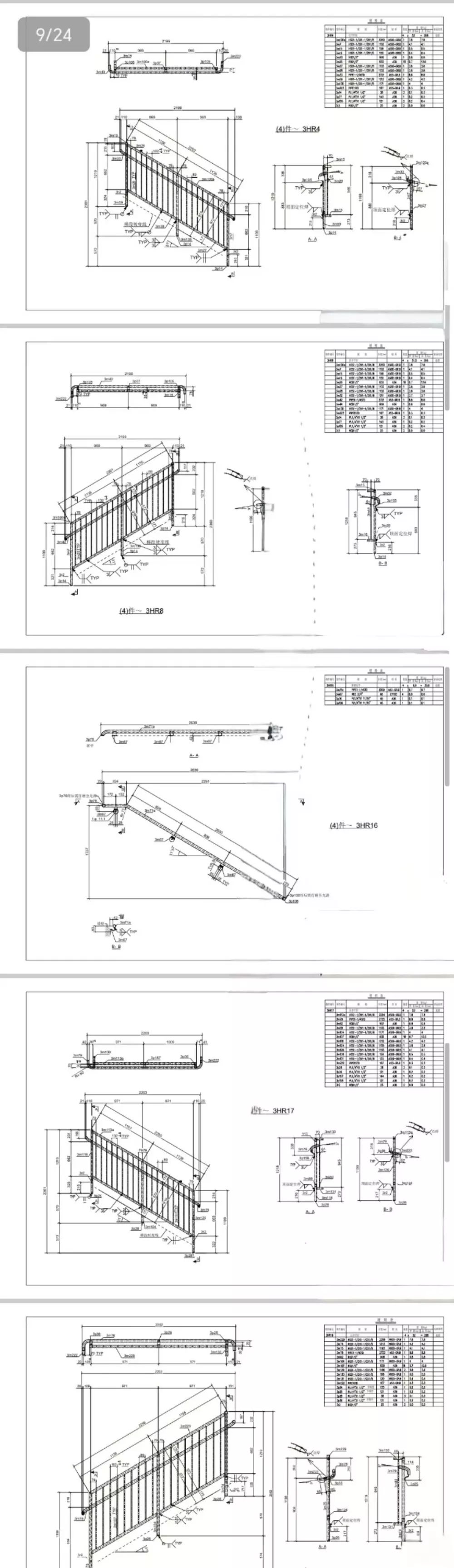
Liweiyuani terasest konstruktsiooni trepid on valmistatud peamiselt kanali terasest ja terasest plaatidest, kasutades lõikamis- ja keevitustehnikaid. Meie toodetel on minimaalsed tugipunktid ja suure koormuse kandevõime. Pakume mitmesuguseid trepistiile ja saame neid ka teie vajadustele kohandada. Olge julgelt!



Liweiyuani terasest konstruktsiooni treppe kasutatakse peamiselt kõrghoonetes, tööstuslikes taimedes ja muudes põldudes. Meie tooted on valmistatud kvaliteetsetest toorainetest, iga protsessi käitatakse rangelt ja iga toode läbib kvaliteedikontrolli enne, kui see teile kätte toimetatakse.
1. Meie toode võtab suhteliselt vähe ruumi ja seda saab kujundada teie ruumi sobitamiseks, muutes selle paigaldamise lihtsaks.
2. See on ökonoomne ja kulutõhus. Võrreldes betoonist treppidega on meie trepid kiiremini ja hõlpsamini paigaldatavad ja ehitatavad, vajavad vähem moodustumist ning maksavad ainult poole vähem.
3. Pakume mitmesuguseid disainilahendusi, mis sobivad teie keskkonnale ja soovitud stiilile.
4. Oleme väga praktilised. Terasest konstruktsiooni trepid võivad olla valmistatud sellistest materjalidest nagu mustrilised terasplaadid ja terasrestid, ning neid saab kohandada vastavalt erinevatele liiklusharjumustele, muutes trepist üles ja alla liikumise lihtsamaks.

5. Meie trepid on kohandatavad, millel on korrosioonikindlad ravimeetodid, näiteks kuum-dip-galvaniseerimine, plastist pihustamine ja maalimine. Neid saab kohandada ka vastavalt klientide individuaalsetele vajadustele. Pakume mitmesuguseid materjale, sealhulgas A36, Q235B ja Q355B.


Liweiyuan on Hiinas professionaalne metallitöötlemise tehas, mis on varustatud täiustatud metallitöötlemise seadmetega, kõrgelt kvalifitseeritud tehnilise meeskonna ja professionaalsete tehnikutega. Lisage oma hoonele ainulaadne puudutus, valides Liwiyuani terasest trepid!